HOLIDAY HOURS / All sample orders or enquiries made between 19 Dec to 4 Jan will be actioned from 5 Jan. Learn more here.

How to Fix Timber Screening Elements

Timber Screening is a great way of adding an element of style to your property with minimal maintenance required

Timber Screening – otherwise known as louvres, are becoming increasingly popular as a way to soften facades, while providing shade from the sun.

The fixing of timber screening is almost always custom designed around the building it will be used on.

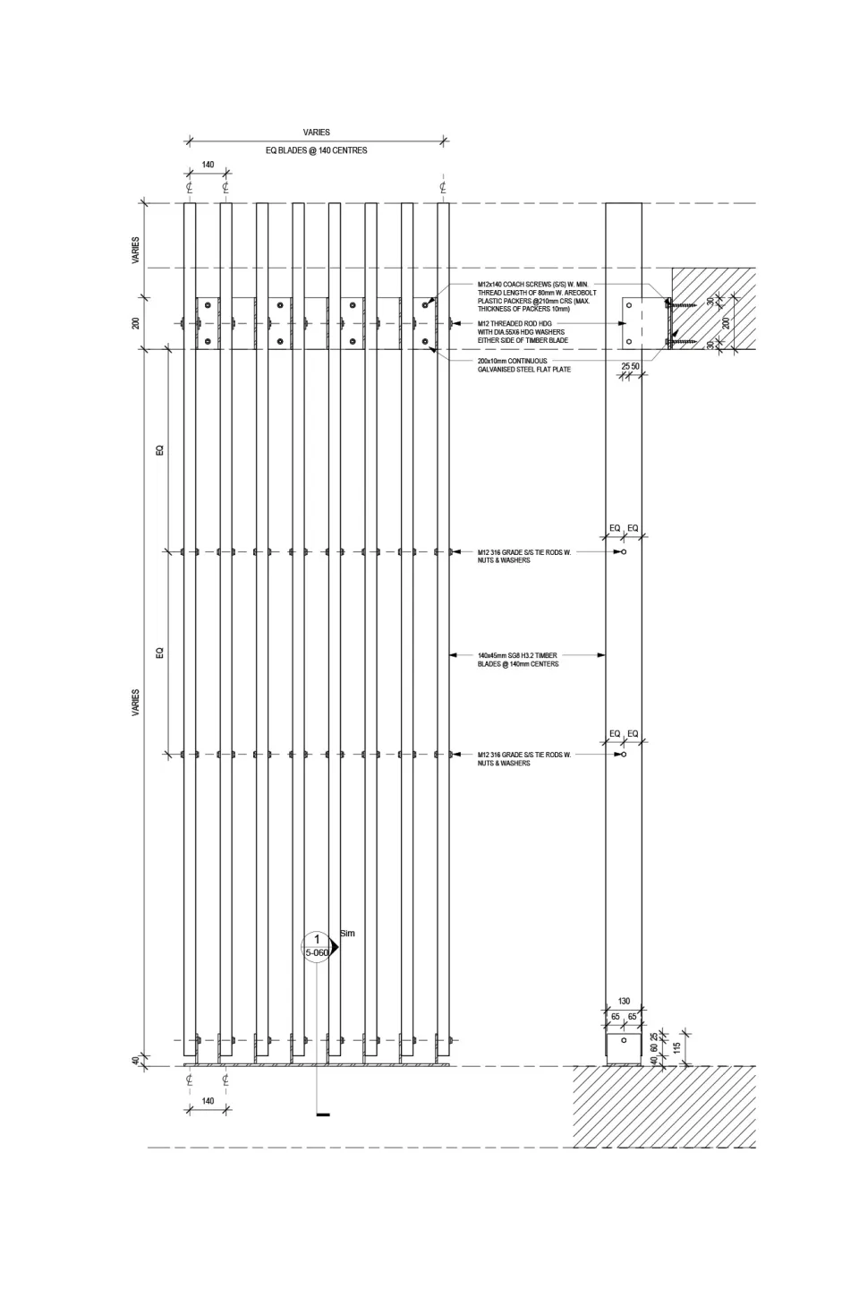
The most common detail (as used on The Grounds) is a bracket top and bottom with fixing points.

Depending on the span of the screening tie rods may not be required. Maximum vertical spans will depend on the section size being used, for example Vulcan 138x42mm will free span up to 3.0m. This is made possible due to the stability of Vulcan thermally modified timber.

Horizontal spans will be different due to the effects of gravity causing possible sagging of the timber. Check with Abodo prior to specifying.

In all cases ends must be thoroughly sealed and a fall or metal cap applied to the tops to protect the end grain of the timber.

Reference drawings below courtesy of Peddle Thorp Architects

How to fix timber screening elements Abodo Wood 4

Bowmac New Zealand offer a standard bracket range that may be suitable for fixing timber screening.

How to fix timber screening elements Abodo Wood 5


Another popular approach is to router brackets into the edge or ends of the timber screening.